
Klinikoiden suunnittelu

Klinikoiden suunnittelu avaimet käteen -periaatteella
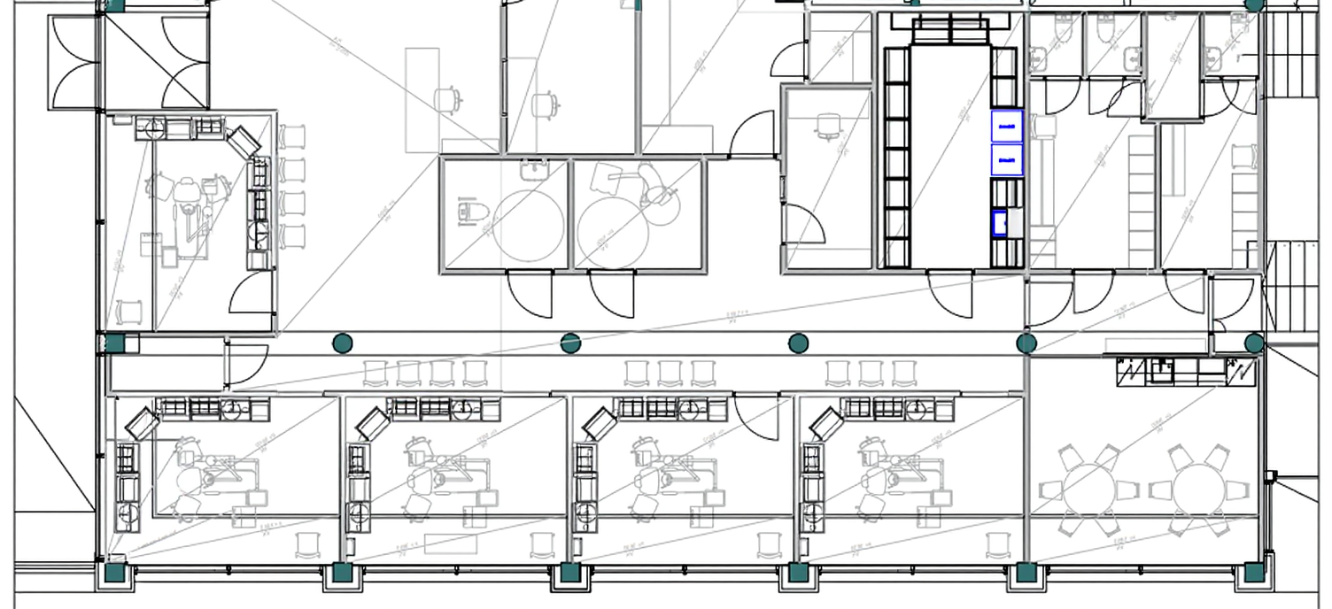
Rakennamme ja uudistamme hammasklinikoita alusta loppuun – suunnittelusta toteutukseen. Edustamme huippumerkkejä kuten Leica, Anthos, Stern Weber ja KaVo, ja varmistamme, että klinikkasi on sekä toimiva että edustava heti ensimmäisestä päivästä lähtien.
Rakennamme ja uudistamme hammasklinikoita alusta loppuun – suunnittelusta toteutukseen. Edustamme huippumerkkejä kuten Leica, Anthos, Stern Weber ja KaVo, ja varmistamme, että klinikkasi on sekä toimiva että edustava heti ensimmäisestä päivästä lähtien.
615


